linkedin pixel
Tillbaka till sökresultatet
Fullskärm
Fullskärm
Tillbaka till sökresultatet
externalLinkIconAlla bilder
På G!
Först på Boneo
Villa6 rok154 + 15783 m² tomt

Fakta om bostaden

  • Pris5 850 000 kr
  • BoendetypVilla
  • Antal rum6 rok
  • Boyta154
  • UpplåtelseformFriköpt
  • Biarea15
  • Tomtarea783 m²
  • Kvadratmeterpris (kr/m²) 37 987 kr/m²
  • Byggnadsår2022

Beskrivning

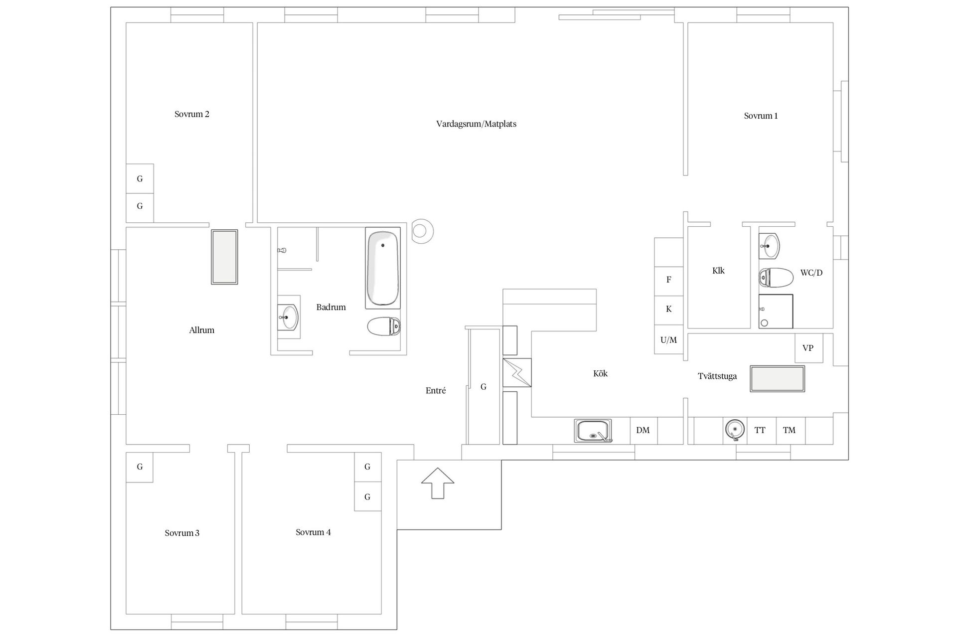
Söker du livskvalitet och ett boende där du inte behöver göra någonting innan du flyttar in? Då är huset på Snickaregatan 5 ditt perfekta hem. Alltigenom känns bostaden lyxig med en hög standard. Här har man inte sparat på tillvalen. Känslan av att "ha hittat hem" infinner sig direkt!

Huset byggdes 2022 och har en ljus och sober interiör med fokus på ljusinsläpp och gemenskap. Väldisponerade ytor för den stora familjen eller för dig som vill ha riktigt gott om plats.
På ena sidan av huset finns tre sovrum och ett allrum med multifunktion samt ett ytterst generöst badrum.
Master bedroom på den andra sidan, naturligtvis med eget badrum och walk in closet. Däremellan ett stort och härligt kök med matplats i öppen planlösning med vardagsrum. Ryggåstak gör rummet luftigt och genom det glasade skjutdörrspartiet flödar ljuset in och känslan av inne och ute suddas ut.

Utemiljön är en fin symbios av sten, trä och grönska. Altandäck löper längs hela husets långsida och runt husets gavel, ett soligt läge där pergola avdelar på ett fint sätt och ger lite skugga. Rund pool även den omgiven av trädäck.
Friliggande förrådsbyggnad och plats för två bilar på tomten.

Skillinge är en levande by året runt, med livsmedelsaffär, förskola, teater, hamnkrog och pizzeria, dessutom är det endast 4 km till underbara sandstränder.
På G!
Först på Boneo
Skillinge, Simrishamn

Snickaregatan 5

Villa6 rok154 + 15783 m² tomt

Mäklare

Mäklare

AwardBadge
Årets Mäklarkedja 2024, 2025
Vinnare av Boneo Awards
banner

Tjänster

Bolån

Räkna på bolån för Snickaregatan 5
nordeaAlltid personlig ränta på ditt bolånRäkna här
Jämför bolån från olika banker!
lanekollPersonlig hjälp hela vägen hem!Räkna direkt!
Bostaden du tittar på matchar med 141 personer i BoneoMatch™

Hur många vill köpa din bostad?

Vi matchar din bostad mot över 500 000 köpsugna personer som går på visningar just nu.

Loading...
På G!
Först på Boneo
Skillinge, Simrishamn

Snickaregatan 5

Villa6 rok154 + 15783 m² tomt

Mäklare

Mäklare

AwardBadge
Årets Mäklarkedja 2024, 2025
Vinnare av Boneo Awards