linkedin pixel
Tillbaka till sökresultatet
Fullskärm
Fullskärm
Tillbaka till sökresultatet
På G!
Först på Boneo
Villa287 + 153 785 m² tomt

Fakta om bostaden

  • Pris18 500 000 kr
  • BoendetypVilla
  • Boyta287
  • UpplåtelseformFriköpt
  • Biarea15
  • Tomtarea3 785 m²
  • Kvadratmeterpris (kr/m²) 64 460 kr/m²
  • Byggnadsår1936

Beskrivning

Välkommen till ett hem som redan vid första anblicken ger en känsla av kvalitet och tidlös elegans. Denna storslagna familjevilla är vackert centralt belägen i eftertraktade Boo Gård. Bostaden erbjuder en genomtänkt planlösning med upp till fem sovrum, två badrum samt en gäst-WC.
Detta hem passar perfekt till den stora familjen då det finns möjlighet till många sovrum och avskildhet för den som önskar. Här bor ni med privat och insynskyddat läge men ändå nära kommunikationer, Boo Gårds skola och Boovallen samt till underbara Boobadet.

Den generösa, parkliknande tomten är solig och insynsskyddad, med ett påkostat poolområde som naturlig samlingspunkt för familj och vänner. Här finns en 8x4 m stor pool, jacuzzi, poolhus med bastu, dusch och WC samt praktisk förvaring både under tak och i separat förråd. På tomten finns ett dubbelgarage med klinkergolv och plåttak, laddstation på utsidan samt goda förvaringsmöjligheter på garagevinden. På fastigheten finns även flera bra förrådsutrymmen.

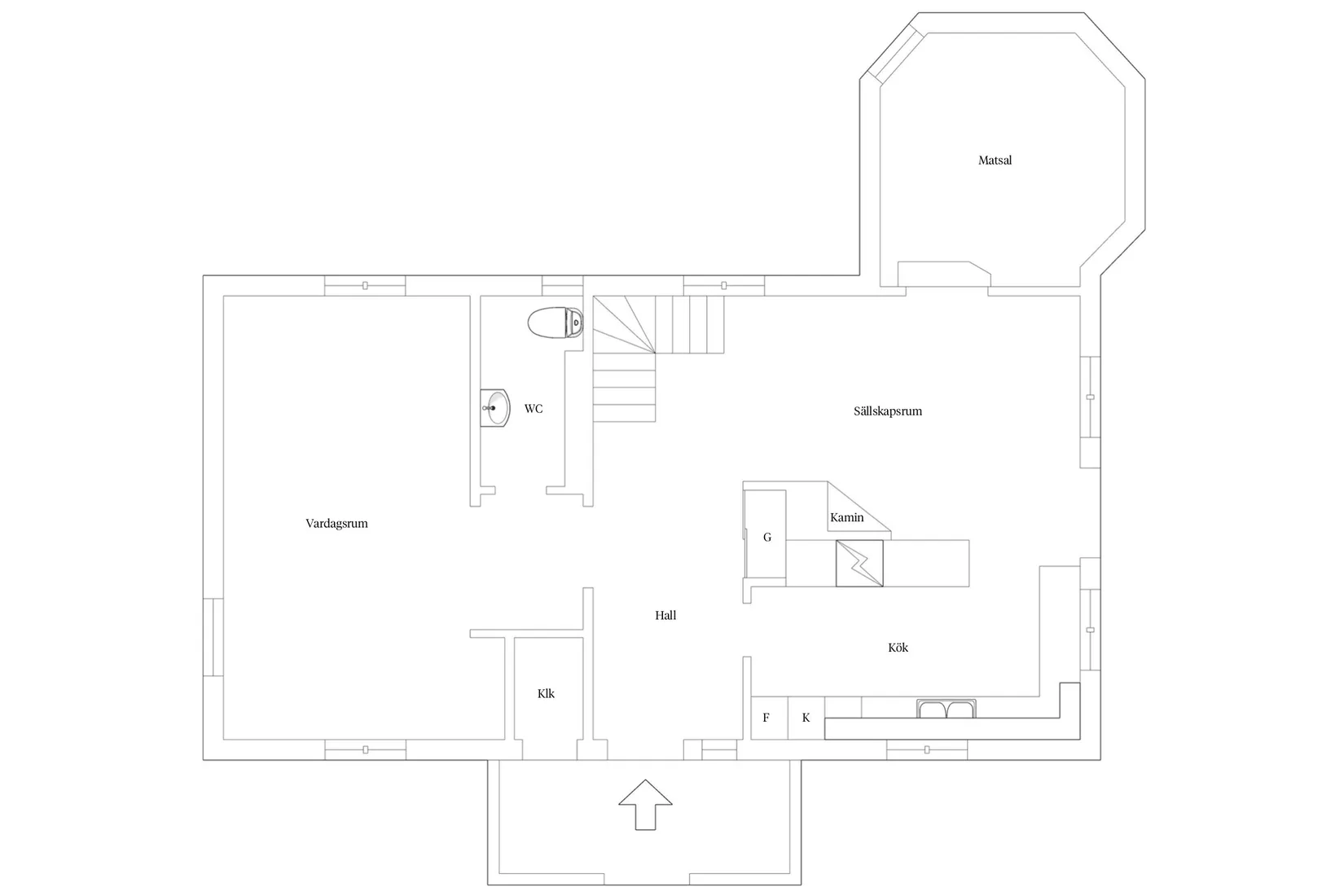
Entrén välkomnar med en rymlig hall med goda avhängningsmöjligheter och platsbyggd förvaring. Golvet pryds av marockanskt klinker som sätter tonen direkt. Härifrån öppnar sig entréplanet med en luftig planlösning och fin vy in mot husets sällskapsdelar.

Köket är rymligt och välplanerat med generösa arbetsytor och en platsbyggd matplats framför den stämningsfulla kaminen. Generösa fönsterpartier mot trädgården och genomgående ekparkett förstärker helhetsintrycket. I direkt anslutning ligger den runda matsalen med det utsmyckade taket, som skapar en naturlig samlingspunkt för middagar och umgänge. Från köket nås den soliga terrassen som leder vidare till det inbjudande poolområdet.

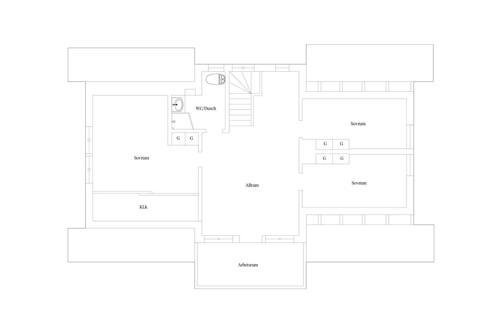
En elegant klädd trappa leder upp till övre plan som rymmer tre sovrum med platsbyggda garderober, ett allrum samt ett rogivande arbetsrum med utsikt över tomtens framsida. Här finns även ett badrum utrustat med dusch, handfat, handdukstork och tvättnedkast samt goda förvaringslösningar.

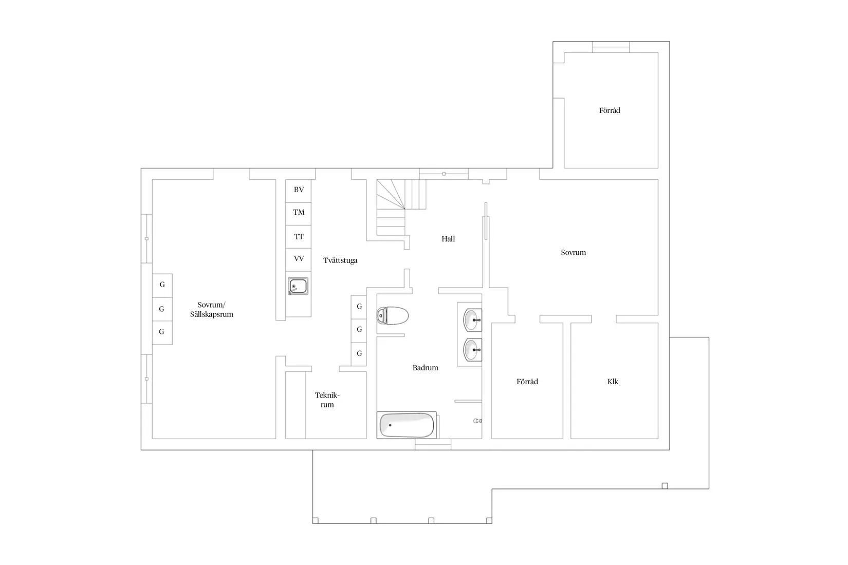
Souterrängplanet erbjuder ytterligare två rymliga sovrum. Här finns ett stort helkaklat badrum med badkar, dusch, dubbla handfat, handdukstork samt en praktisk förvaringsbänk. Vidare finns en generös tvättstuga med utgång till baksidan, teknikrum med centraldammsugare samt förråd med goda förvaringsmöjligheter.

Bostaden präglas genomgående av generösa sällskapsytor, noggrant utvalda material, smarta förvaringslösningar och en behaglig rymd. Den stora tomten lämpar sig väl för både lek och sociala tillställningar. Poolen är strategiskt placerad för att fånga sol från morgon till kväll, och i anslutning finns en rymlig terrass. Poolhuset byggdes ut 2025 och erbjuder idag hög komfort med bastu, dusch och WC. Automatiska markiser ger behaglig skugga under varma dagar.

Under 2024 asfalterades uppfarten, och gästparkering finns i anslutning till vägen.

Den ursprungliga villan från 1930-talet har varsamt byggts till och moderniserats genom åren. Resultatet är ett hem som på ett harmoniskt sätt förenar klassisk charm med moderna bekvämligheter.


Välkommen hem!
På G!
Först på Boneo
Boo Gård, Nacka

Kadettvägen 10

Villa287 + 153 785 m² tomt

Mäklare

Mäklare

AwardBadge
Årets Mäklarkedja 2024, 2025
Vinnare av Boneo Awards
banner

Tjänster

Bolån

Räkna på bolån för Kadettvägen 10
nordeaAlltid personlig ränta på ditt bolånRäkna här
Jämför bolån från olika banker!
lanekollPersonlig hjälp hela vägen hem!Räkna direkt!
Bostaden du tittar på matchar med 62 personer i BoneoMatch™

Hur många vill köpa din bostad?

Vi matchar din bostad mot över 500 000 köpsugna personer som går på visningar just nu.

Loading...
På G!
Först på Boneo
Boo Gård, Nacka

Kadettvägen 10

Villa287 + 153 785 m² tomt

Mäklare

Mäklare

AwardBadge
Årets Mäklarkedja 2024, 2025
Vinnare av Boneo Awards